148 East State Street
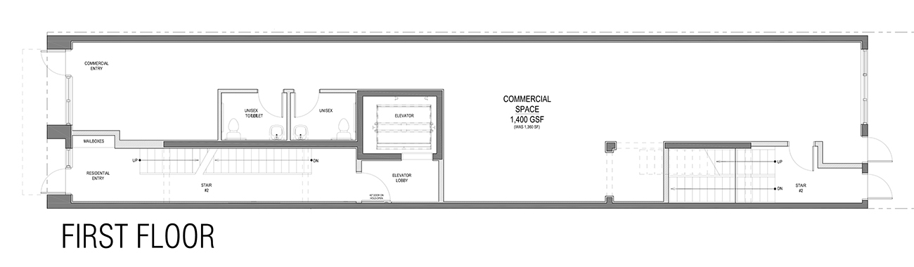
A new building will be developed containing a commercial office suite on the first floor, 1,400GSF. Conveniently located near the Trenton Transit Center or hop on the highway only a few blocks away.
Coming Soon!
Why Open In Trenton?
Affordable Commercial Real Estate: Office space and purchasing costs are among the lowest in the region.
Strong Local Market: High foot traffic potential and a growing, vibrant community.
Urban Enterprise Zone (UEZ): Qualified businesses can collect reduced sales tax (3.3125% instead of 6.625%) on sales.
Low-Interest Loans: The city offers loans up to $250,000 at 3% interest for businesses that hire local residents.
NJ Ignite Program: Start-up rent grants.
Small Business Improvement Grant: Specific programs for improvements in the East Trenton area.



